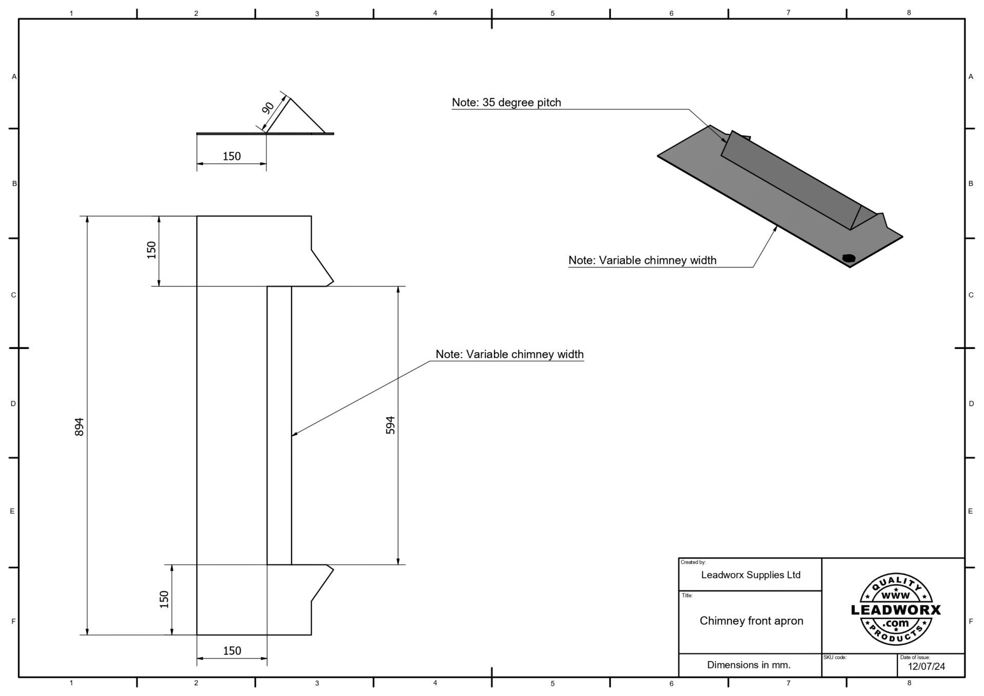
Our front apron chimney flashing products are designed and fabricated to suit any chimney size and orientation. Ensuring the perfect fit every time.
These front aprons are all made to order to ensure you get the best product for your property. We require the size of the chimney, the pitch of the roof (see how to measure pitch) and the number of items required.
Specification Sheet
